
BASTĖJA
Klasiška. Skaidru. Mada. Trys pagrindiniai raktiniai žodžiai apibūdinantys Vilniaus senamiestyje esančio buto interjerą. Visi korpusiniai, stambieji baldai gaminti iš natūralaus medžio spalvos plokštės, pritaikyta rinktinio medžio tekstūra – sušildanti bendrą monochrominį interjero koloritą, bei sušvelninanti kitas grubesnes faktūras. Šie baldai neutralus fonas drąsesniems sprendimams, kaip molio ir akmenukų rankų darbo dekoro sienos, šalto nerūdijančio plieno, stiklo konstrukcijos ir detalės. Kiaurai stiklines pertvaras ir duris šviesa nenutrūkstamai keliauja per visą butą. Derinami išskirtinio dizaino, skulptūriški akcentiniai baldai, jų šviesus koloritas kontrastuoja anglies spalvos chevron parketlenčių fone. Projektuojamas balansas tarp priešingybių: skaidrumo/ permatomumo/ lengvumo/ lygumo/ aptakumo ir grubumo/ rupumo/ ryškumo/ stambumo/ statiškumo.
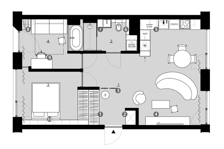
60 m2
2022 m. / Vilnius
Fotografas: Lukas Mykolaitis








































Realizacija © Eivina Lazickaitė
