
M&M BEAN
Projektas laviruojantis tarp standarto ir unikalumo.
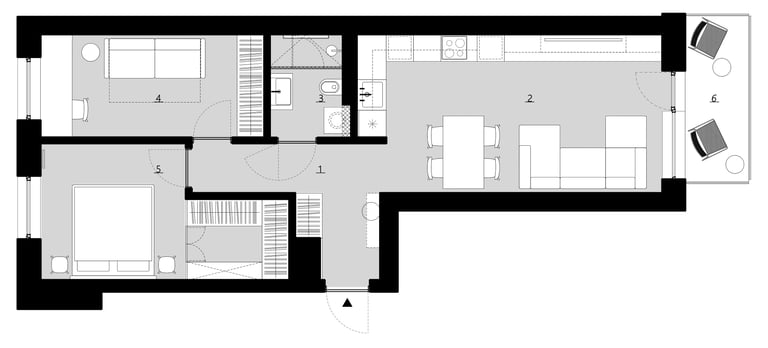
Būdami griežtuose medžiagų parinkimo rėmuose, kurios buvo renkamos iš statytojo standartinio apdailos paketo, stengtasi sukurti jaukumą ir pritaikyti interjero emociją individualiam klientui. Interjero projektavimas prasidėjo nuo balto lapo, kurį pavertėme pilku - visos buto sienos dažytos pilku atspalviu. Pasirinkti papildomi apdailiniai elementai, kaip mediniai brūseliai, veidrodžiai, dizaino plytelės - jaukina bei dekoruoja erdves. Medinių paviršių ir detalių gausa formuoja natūralumo jausmą, o akcentinės spalvos tekstilė įveda žaismingumo. Individualios gamybos korpusiniai baldai ir užsakomieji šviestuvai išpildė funkcionaliuosius poreikius ir leido lanksčiau įgyvendinti nestandartinius sprendimus.
60 m2
2021 m. / Vilnius
Fotografė: Gerda Baltrūnaitė, Interio Shot


































Realizacija © Eivina Lazickaitė




