
(un) COMFY
Esamų senamiesčio pastatų pritaikymas kurybinėms ir bendradarbystės erdvėms. Kuriama universali, plačių galimybių erdvė atitinkanti įvairius poreikius turintiems, savarankiškai ir komandose dirbantiems. Palaipsniui kylant aukštais auginama privataus/ramaus darbo aplinka, tad esant skirtingų intensyvumų zonoms, atsiveria plačios galimybės rinktis patogią darbo aplinką individualiai. Projektą pavadinau (un)Comfy, norėdama sukelti dviprasmiškus jausmus bei sugretinti priešingybes: sena/nauja, laikina/amžina, patogu/nejauku. Pats žodis anglų kalboje yra plačios reikšmės, tai gali būti tiesioginis komforto įvertinimas ar vidinio jausmo išreiškimas. Kad sustiprinčiau pavadinimo reikšmę galerijai parinkau fotografijas, jas vadinu „Young&wise“, kuriose įamžinti vaikai protestuose. Norėčiau iškelti aktualius nepatogius klausimus, pažadinti sąmoningumą, padrąsinti mažais darbais kurti jaukesnį rytojų ir būti vienas kitam labiau artimu.
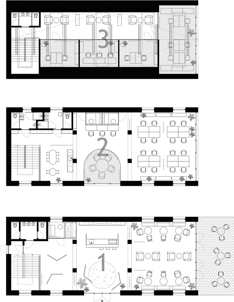
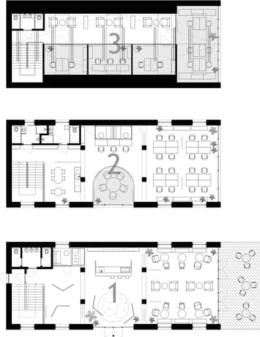
Pirmajame aukšte - planuojama atvira visiems kavinės zona – galimybė trumpam darbui prie kompiuterio, neformaliam susitikimui su klientu, organizuoti renginius. Didelė vitrina šiltuoju metų sezonu leidžia vidaus plotą padidinti ir plėstis į terasą. Šalia esanti galerija kviečia atitrūkti nuo darbų, nukelti mintis ir edukuotis. Baldai bei stendai yra mobilūs, todėl erdvė nesunkiai konvertuojama skirtingoms veikloms. Antrajame aukšte – kuriama bendradarbystės erdvė Hub, bendro naudojimo virtuvė, konferencijų salė, privačios pokalbių būdelės, dušai, wc zonos. Trečiajame aukšte, mansardoje – jaukesni, privatūs ofisai. Bendras holas, minkštomis prisėdimo zonomis, leidžia atskiroms kompanijoms susiburti ir komunikuoti tarpusavyje.
koncepcija konkursui
2020 m.
Vizualizacijos




















Vizualizacijos © Eivina Lazickaitė
